Immobilien in Paraguay kaufen, verkaufen & mieten. Kompetent und fair.

März 2023 fertiggestelltes ökologisches Architektenhaus in Emboscada, Paraguay. Lehmbau, Gründach, Extras.

  • $245,000.00
Cordillera, Emboscada, Emboscada, Cordillera, Región Oriental, 3210, Paraguay / Paraguái
  • GP24003
  • Exposé-Nr.
  • Cordillera
  • Departamento
  • Grundstück, Haus
  • Typ
  • 87
  • Wohnfläche m²
  • 1600
  • 4
  • Zimmer
  • 1
  • Schlafzimmer
  • 1
  • Badezimmer
  • 2023
  • Baujahr
Verkauf
März 2023 fertiggestelltes ökologisches Architektenhaus in Emboscada, Paraguay. Lehmbau, Gründach, Extras.
Cordillera, Emboscada, Emboscada, Cordillera, Región Oriental, 3210, Paraguay / Paraguái
  • $245,000.00

Beschreibung

Grundstück 1.600 qm
Haus 127 qm überdachte Fläche, 87 qm Haus, 40 qm Terrasse.

Das Objekt befindet sich in einem geschlossenen Barrio, in Valle Tucan, Emboscada, Paraguay, vor den Toren der Hauptstadt.

Die etwas andere Wohnanlage, für die Herr Prof. Dr.-Ing. Gernot Minke, ein international anerkannter Experte für ökologisches Bauen in tropischen und subtropischen Klimazonen die Entwürfe fertigte.

Das Haus bietet durch seine gehobene Ausstattung jeglichen Komfort. Es ist Seniorengerecht.
Die Ausstattung entspricht dem europäischen Standard, Einbaugeräte, Badkeramik, Armaturen, Kaminofen stammen aus Deutschland.

Mit viel Liebe zum Detail geplant und gebaut. Angefangen von der großzügigen Raumaufteilung, extra breiten Türen, teure rutschfeste Fliesen im Innen- und Außenbereich, Sitzbank in der Dusche, Bodentiefe Fenster, Kaminofen, Oberlichter, elektrische Rollläden, Doppelverglasung und Glasfaser Internet sind nur einige der Highlights.

Die Außenanlagen bestechen durch einen großen Infinity-Pool mit extra Sitzflächen, angelegten Wegen, und einer zusätzlichen Naturschatten-Terrasse.
Bei Interesse kann ein 15 minütiges Video übersandt werden.
Versorgung mit Brunnenwasser!

Fakten im Überblick:

  • Altersgerechtes Wohnen in gehobener Ausführung
  • 1.600qm Grundstück, bestehend aus 2 Lotes (Nr. 90 + 91)
  • 1 Lotes unbebaut mit Containerstellplatz für 20 oder 40 Fuß Container.
  • Haus 127 qm überdachte Fläche
  • 87 qm Haus
  • 40 qm Terrasse
  • Internet Glasfaser
  • Aufteilung: Flur, Wohnzimmer, Schlafzimmer, Küche mit großer Essecke/ Arbeitsplatz, Abstellraum
  • Unverbaubarer Blick in die Natur
  • Kaminofen 6 KW Gusseisen mit Kochplatte
  • Oberlichter für helle Räume
  • Doppelverglasung mit weißen Alu Rahmen
  • Schiebe-Moskiteros an allen Fenstern und Türen
  • Elektrische Rollläden mit FB an den Terrassentüren und Fenster im Wohnzimmer
  • Steinverkleidung an den Außenwänden zur Terrasse
  • 30 cm Betondach mit Dachbegrünung
  • 3 Kammern- Pflanz-Kläranlage zur Bewässerung des Gründachs
  • 30 cm dicke Wände aus Lehmstein für optimales Raumklima
  • 5 Klimaanlagen einschließlich Badezimmer
  • Badezimmer mit erhöhtem WC (48 cm) mit Softclose, Bidet, Designer Aufsatz-Waschbecken auf Granittisch
  • Dusche mit Sitzbank, Duscharmatur mit Thermostat von „Grohe“
  • Alle Armaturen der Marke „Grohe“ aus Deutschland
  • Badkeramik hochwertig aus Deutschland
  • Breite weiße Innentüren, Rollstuhl gerechte Breite
  • Eingangstür weiß mit Glaseinsatz
  • Hochwertige rutschfeste Fliesen im Innen- und Terrassenbereich
  • Überall LAN Verkabelung einschließlich auf der Terrasse mit CAT 7 Kabel verlegt
  • Abstellraum mit kompletter Haustechnik und Anschluss für Waschmaschine, Trockner
  • Hochwertige Küche mit Hochschränken und 2 großen Ausziehschränken, mit Einbaubackofen, Schrank für Mikrowelle und Kühlschrank mit offenen Regalen
  • Küche komplett mit Schubladen mit Softeinzug
  • Küchengeräte aus Deutschland Marke Neff und Bosch
  • Spüle Ceranit aus Deutschland mit Küchenarmatur von Grohe mit ausziehbarem Brauseschlauch
  • Komfortable Arbeitshöhe von 92 cm
  • Granitplatte
  • Notfall System. In jedem Raum, Küche und Bad wurden Schalter installiert, welche bei Betätigung, Sirenen am Haus auslösen, um zu signalisieren, dass Hilfe benötigt wird
  • Großer Ess- oder Arbeitsplatz in der Küche mit bodentiefen Fenstern (zum öffnen) mit Blick ins Grüne
  • Terrasse mit Brüstung und breiter Steinverkleidung oben, Lichtauslässe mit indirektem Terrassenlicht
  • 2 Ventilatoren mit Licht auf der Terrasse
  • 5 Lampen für Terrassenbeleuchtung
  • 5 Lampen ums Haus herum
  • Terrasse kann mit Moskiteros versehen werden
  • Überdurchschnittliche Elektroausstattung (allein im Wohnzimmer sind 20 Steckdosen)
  • Infinity Pool 2 m tief von der Terrasse begehbar mit Blick in die Natur und Beleuchtung
  • Sehr schöne Pool Anlage mit Sitzfläche für die Wintermonate, Wegen und Bereichen für Pflanzen
  • Separate Terrasse als Grill/ Sitzplatz im Naturschatten
Dronenaufnahme

Video

  • Stadt Emboscada
  • Departamento Cordillera

Details

  • Exposé-Nr.: GP24003
  • Preis: $245,000.00
  • Grundstück: 1600 m²
  • Wohnfläche: 87 m²
  • Schlafzimmer: 1
  • Zimmer: 4
  • Badezimmer: 1
  • Baujahr: 2023
  • Typ: Grundstück, Haus
  • Status: Verkauf

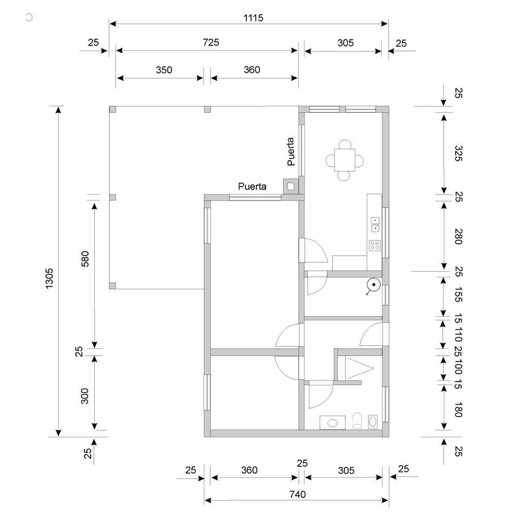
Grundrisse

image

Beschreibung:
Lote. Hier ist Platz für eine Beschreibung.

image

Beschreibung:
Wenn wir zu einigen oder jedem Plan ein kleine Beschreibungschreiben wollen können wir sie hier einstellen.

image

Beschreibung:
Grundriss

image

Beschreibung:
Lotes / Grundstück

image

Beschreibung:
Grundriss & Seitenansicht

image

Beschreibung:
Grundriss

Kontakt Information

Objekte anzeigen
Grundstücke Paraguay

Erkundigen Sie sich über dieses Objekt

Ähnliche Angebote

Stressarme & Missverständnis-freie Abwicklung, notariell geprüfte Unterlagen, international erfahrenes Team. Grundstuecke-Paraguay.com Copyright © 2024

Compare listings

Vergleichen
Grundstücke Paraguay
  • Grundstücke Paraguay